Manny Verdugo / CDN Global Advisors Ltd.

Unit 2001, 4 Highland Park Green NE, Commercial for sale in NONE Airdrie , Alberta , T4A 2G2

 MLS® # A2298448

0 bathrooms

Sign up to View

Days on Market

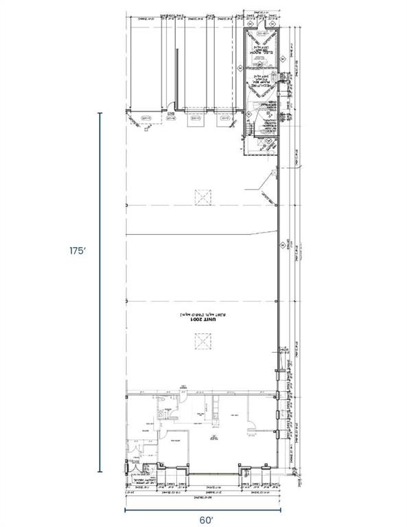
8,267 Sq. Ft. ‘A’ class industrial bay with dock and drive-in located in Airdrie’s Highland Park Industrial, which is Airdrie’s newest industrial park with high quality architectural controls. Airdrie has favorable property taxes compared to the City of Calgary, which has attracted many tenants and owner-users to this area. Developed by Beedie and awarded for excellence from the Urban Development Institute (UDI). The building is constructed in insulated concrete panels and EPDM roofing system. Quality indus...

Read More

Essential Information

  • MLS® #
    A2298448
  • Year Built
    2017
  • Property Type
    Industrial
  • MLS® #
    A2298448
  • Year Built
    2017
  • Property Type
    Industrial
  • MLS® #
    A2298448
  • Year Built
    2017
  • Property Type
    Industrial

Community Information

  • Postal Code
    T4A 2G2
  • Postal Code
    T4A 2G2
  • Postal Code
    T4A 2G2

$14/sqft

Unit 2001, 4 Highland Park Green NE

Schedule Tour
Contact Agent

$1/month
Est. Monthly Payment
$
$
%
Learn More